Overview
- Updated On:
- May 16, 2024
- 3 Bedrooms
- 3 Bathrooms
- Property ID
- 80080
- Year Built:2025-05-13
Property Description
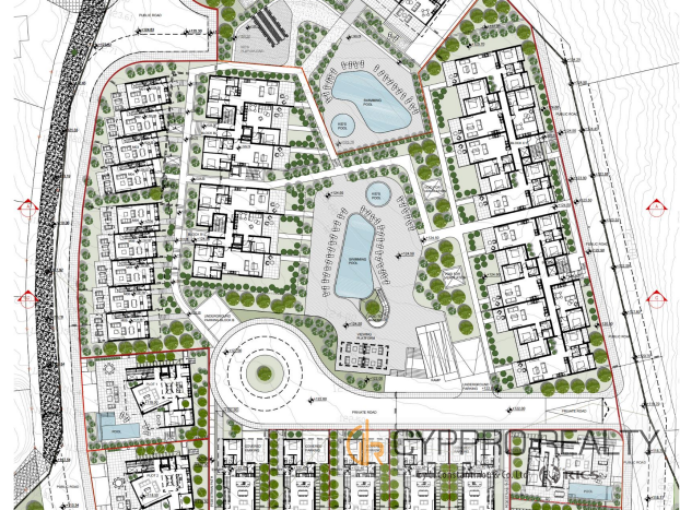
The project is located in Agios Athanasios area.
Each villa has their own unique architecural features, focusing on pravacy and space , not only full of aesthetic pleasure , but also it makes your living more confotable and closer to nature. The houses are surrounded by green spaces and landscaped gardens. the large floor-to-ceiling windows allow seamless cinnection between indoor and outdoor spaces, allow air circulation free and you
can feel seabreeze in your house. The large shaded terrace and private infinity swimming pool form an outdoor social space, which allowing you to enjoy the pleasure Mediterranean climate and invincible seview at anytime.
The villas area varies from 230-310 sq.m., All house owners have their own private parking space and separate storage room. Private Garden in additional to each house owner on the grand floor and the top floor. the private parking space and separate storage room are equipped for all house owners.




















