Overview
- Updated On:
- June 14, 2023
- 2 Bedrooms
- 2 Bathrooms
- Property ID
- 82887
- Year Built:2024-09-10
Property Description
A unique new development in Limassol, just 400 meter from Dasoudi Beach and close to all amenities.
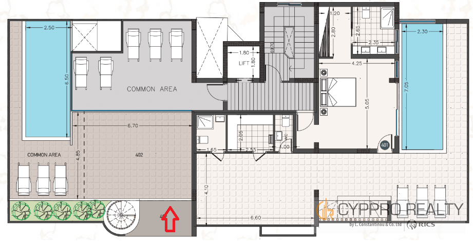
Ground Floor
- Parking area & storages
Mezzanine Floor
- Gym area
- Jacuzzi
- Changing rooms
- Showers
- Large storages with en suite
1st – 2nd & 3rd Floor
- 3 Apartments on each floor (Total of 9 flats)
4th Floor
- 1 Penthouse with roof garden
- 1 Penthouse with private pool and roof garden
Covered Area of Apartment:
- Bedrooms: 2+1v
- Bathrooms: 2 (1 en-suite)
- Internal Area: 83 sq.m.
- Covered Room 1v: 14 sq.m.
- Covered Veranda: 4.5 sq.m.
- Uncovered Veranda: 18 sq.m.
- Common Area: 14 sq.m.
- Roof Garden: 30 sq.m.
Specifications & Amenities
- Custom Design Kitchen & Wardrobes
- Granite Worktops
- Travertine or Porcelain flooring
- Sanitary Ware (Cielo)
- Mixers & Taps (Inda)
- Pipe in Pipe Plumbing System
- Pressurized Water System
- Solar Panel Water Heating
- Gated Secured Complex
- Fully Landscaped Garden Areas
- Covered Secured Parking
- Decorative Architectural LED Lighting for Common Areas
- CCTV for all Common Areas
- Luxury Entrance Lobby
- Security Door
- Video Phone Entry System
- Private Storeroom
- Thermal Insulation Throughout (extruded polystyrene)
- Common Swimming Pool
- Private Swimming Pool for Flat 401
Property Id : 82887
Price: € 900,000 +VAT
Bedrooms: 2
Bathrooms: 2
Year Built: 2024-09-10
Parking: 2
Floor: 4
Levels: 4
Covered Area: 97
Covered Veranda: 4.5
Total Covered Area: 115.5
Common Area: 14
Uncovered Area: 18
Roof Garden: 30
ID: ELEVEN
Distance to sea m: 400
Other Features
Communal Swimming Pool
Covered Parking
Double Glazed
Elevator
En Suite Bathroom
Garden
Gated complex
Gym
Parquet in Bedrooms
Pool Shower
Pressurized Water System
Quiet Location
Solar Heating
Storage
Verandas
Thu
25
Dec
Fri
26
Dec
Sat
27
Dec
Sun
28
Dec
Mon
29
Dec
Tue
30
Dec
Wed
31
Dec
Thu
01
Jan
Fri
02
Jan
Sat
03
Jan
Your information
Property Reviews
You need to login in order to post a review
Similar Listings
Luxury 3 bedroom seafront apartment in Pegas...
from € 250 per day
Luxury penthouse on the first line is located in the heart of the tourist zone, 20 ...
Irakli Mirianashvili
Beachfront 3 Bedroom apartment in Solferino
€ 890,000
Perfectly located on the beach in the tourist area of Limassol, 150 meters from the 5/star ...
Irakli Mirianashvili
Beachfront Apartment in The Ermitage
From € 185 per Day
The complex is located in the center of the tourist area of Limassol (Yermasogeia area) wi ...
Irakli Mirianashvili
1 Bedroom apartment in Bayview Gardens
€ 75 Per Day
The apartment is located in the Tourist area Potamos Germasogia, a short walk from the sea ...
Irakli Mirianashvili
















































